Chiêm ngưỡng thiết kế nhà 2 tầng 1 tum đậm chất hiện đại và tinh tế

Thông tin công trình

Dung’s House là một tên gọi “giản dị” mà đội ngũ kiến trúc sư SYM HOUSE dành tặng cho công trình nhà 2 tầng 1 tum của gia đình 3 thế hệ cùng sinh sống. Dự án này tọa lạc tại Hải Dương trên nền diện tích xây dựng  5x12m được chăm chút tỉ mỉ trong từng đường nét thiết kế, tối ưu hóa công năng sử dụng và kiến tạo nên một không gian sống tiện nghi, thoáng đãng và xanh mát.

Hãy cùng SYM HOUSE khám phá chi tiết mẫu thiết kế này dưới đây,  hy vọng sẽ là một ý tưởng tiếp theo góp phần khơi nguồn cảm hứng cho không gian sống mơ ước của bạn và gia đình nhé!

Hiện trạng mảnh đất xây dựng nhà 2 tầng 1 tum của anh Dũng, Hải Dương

Mảnh đất xây dựng nhà 2 tầng 1 tum của gia đình anh Dũng, Hải Dương có diện tích 5x12m không theo khuôn mẫu phần đầu hẹp, thuôn dài, rồi bất ngờ mở rộng về phía sau, tạo thành một hình dáng đa giác phức tạp với nhiều góc chéo hoàn toàn không vuông vắn. Thế đất nở hậu nhưng lại thiếu sự cân đối- Đây là  một bài toán không dễ với bất kỳ kiến trúc sư nào.

Hiện trạng của mảnh đất xây dựng nhà 2 tầng 1 tum của gia đình anh Dũng tại Hải Dương
Hiện trạng của mảnh đất xây dựng nhà 2 tầng 1 tum của gia đình anh Dũng tại Hải Dương

Đứng trước trước một mảnh đất “độc bản” với hình dáng đa giác thon dài như vậy đội ngũ thiết kế SYM HOUSE không chọn lối đi an toàn với các phương án rập khuôn khác, mà thay vào đó là cách tiếp cận sáng tạo, linh hoạt để phát huy tối đa tiềm năng vị trí, đồng thời giải quyết triệt để các bất lợi của hình khối khu đất của gia đình anh Dương tại Hải Dương. 

CEO. Hồ Văn Việt cùng anh Dũng (chủ đầu tư) ký kết hợp đồng xây nhà 2 tầng 1 tum trọn gói
CEO. Hồ Văn Việt cùng anh Dũng (chủ đầu tư) ký kết hợp đồng xây nhà 2 tầng 1 tum trọn gói

Mảnh đất đặc biệt này đặt ra không ít thử thách, vậy SYM HOUSE đã giải bài toán thiết kế ra sao? Câu trả lời nằm ngay dưới đây.

Mặt tiền nhà 2 tầng 1 tum hiện đại mang nét sang trọng, cuốn hút trong từng đường nét

Dung’s House gây ấn tượng mạnh mẽ ngay từ ánh nhìn đầu tiên bởi bố cục mặt tiền cân đối theo phương đứng với hình khối vuông vức đầy dứt khoát. Gam màu trung tính chủ đạo được xử lý khéo léo, giúp ngôi nhà toát lên thần thái sang trọng, tinh gọn nhưng đầy cuốn hút mà đội ngũ kiến trúc sư SYM HOUSE mang đến.

nha 2 tang 1 tum 7
Mặt tiền với các hình khối vuông vức sở hữu đường nét đơn giản nhưng không kém phần tinh tế

Tầng 2 và tầng tum của ngôi nhà sở hữu ban công rộng, được trang bị lan can kính cường lực trong suốt. Đây là một giải pháp kiến trúc giúp mở rộng tầm nhìn, tận dụng tối đa ánh sáng tự nhiên, đồng thời mang lại cảm giác nhẹ nhàng, thông thoáng cho không gian sống. Ngoài ra, các mảng xanh cũng được bố trí tinh tế tại các ban công mang đến cảm giác thư thái và gần gũi với thiên nhiên.

 

 Sở hữu ban công rộng, được trang bị lan can kính cường lực trong suốt
Sở hữu ban công rộng, được trang bị lan can kính cường lực trong suốt

Cổng nhà được thiết kế với kiểu dáng đơn giản, tinh gọn, hài hòa với tổng thể kiến trúc. Bao quanh là bức tường xây bằng gạch thông gió, vừa tạo điểm nhấn thẩm mỹ nhẹ nhàng, vừa đảm bảo sự thông thoáng cho không gian bên trong.

 

Cổng với kiểu dáng đơn giản kết hợp với gạch thông gió vừa thẩm mỹ, thông thoáng cho ngôi nhà.Sân thượng rộng rãi với hệ mái che lam sắt tĩnh điện là nơi lý tưởng để ể thư giãn hay đơn giản là tận hưởng những buổi chiều yên bình cùng gia đình.
Cổng với kiểu dáng đơn giản kết hợp với gạch thông gió vừa thẩm mỹ, thông thoáng cho ngôi nhà.Sân thượng rộng rãi với hệ mái che lam sắt tĩnh điện là nơi lý tưởng để ể thư giãn hay đơn giản là tận hưởng những buổi chiều yên bình cùng gia đình.

Một trong những điểm nhấn ấn tượng của công trình chính là sân thượng tại tầng tum. Mái che lam sắt sơn tĩnh điện không chỉ mang tính thẩm mỹ cao mà còn đóng vai trò như một “tấm lọc nắng” thông minh  kết hợp cùng hệ cây treo và cây trồng viền tạo nên một khu vườn nhỏ trên cao đầy lý tưởng “cực chill” để gia chủ thư giãn hay đơn giản là tận hưởng những buổi chiều yên bình cùng gia đình.

Tận dụng khéo léo những khoảng thừa để làm sân và khu vườn nhỏ xanh mát
Tận dụng khéo léo những khoảng thừa để làm sân và khu vườn nhỏ xanh mát

Do mảnh đất của gia đình anh Dũng có hình dạng đa giác phức tạp với nhiều góc chéo và hoàn toàn không vuông vắn, chúng tôi đã lựa chọn giải pháp tận dụng khéo léo những khoảng thừa để làm sân trước nhà và còn thiết kế thêm một khu vườn nhỏ xanh mát. Không chỉ giúp tối ưu hóa diện tích khó xử lý, khu vườn này còn mang đến điểm nhấn sinh động và tạo nên sự cân bằng hài hòa cho tổng thể không gian sống.

>>>Xem thêm: Báo giá xây nhà trọn gói từ A-Z tại SYM HOUSE

Không gian nội thất với bố cục sắp xếp thông minh, ấm cúng và tiện nghi

Mặt bằng công năng tầng 1 được kiến trúc sư SYM HOUSE thiết kế với định hướng tối ưu hóa không gian sống, đề cao sự tiện nghi, kết nối liền mạch giữa các khu vực và đảm bảo sự riêng tư cần thiết.

Chúng tôi đã bố trí khu vực phòng khách được đặt ở vị trí mặt tiền có hệ cửa lớn nhằm tận dụng tối đa ánh sáng tự nhiên và gió trời tạo cảm giác rộng rãi, thông thoáng.

Mặt bằng tổng thể của ngôi nhà 2 tầng 1 tum của gia đình anh Dũng tại Hải Dương
Mặt bằng tổng thể của ngôi nhà 2 tầng 1 tum của gia đình anh Dũng tại Hải Dương

Tiếp nối phòng khách là khu vực bếp – ăn được SYM HOUSE thiết kế theo dạng mở nhằm tăng tính kết nối giữa các thành viên trong gia đình. Không gian bếp được bố trí gọn gàng theo dạng chữ I kết hợp với bàn ăn, bàn đảo được đặt song song, thuận tiện trong quá trình nấu nướng và di chuyển. 

Mặt bằng tầng 1 ngôi nhà 2 tầng 1 tum của gia đình anh Dũng tại Hải Dương
Mặt bằng tầng 1 ngôi nhà 2 tầng 1 tum của gia đình anh Dũng tại Hải Dương 

Anh Dũng chia sẻ rằng, do gia đình có người lớn tuổi nên trong quá trình thiết kế, kiến trúc sư SYM HOUSE đưa ra giải pháp bố trí một phòng ngủ ngay tại tầng 1, đặt về phía sau nhà để đảm bảo sự yên tĩnh, riêng tư và thuận tiện di chuyển. 

Diện tích phòng được chúng tôi tính toán hợp lý, đủ để sắp xếp giường ngủ, tủ quần áo, bàn trang điểm, đồng thời vẫn chừa khoảng trống đảm bảo sự thoải mái và an toàn trong quá trình sử dụng hàng ngày.

 
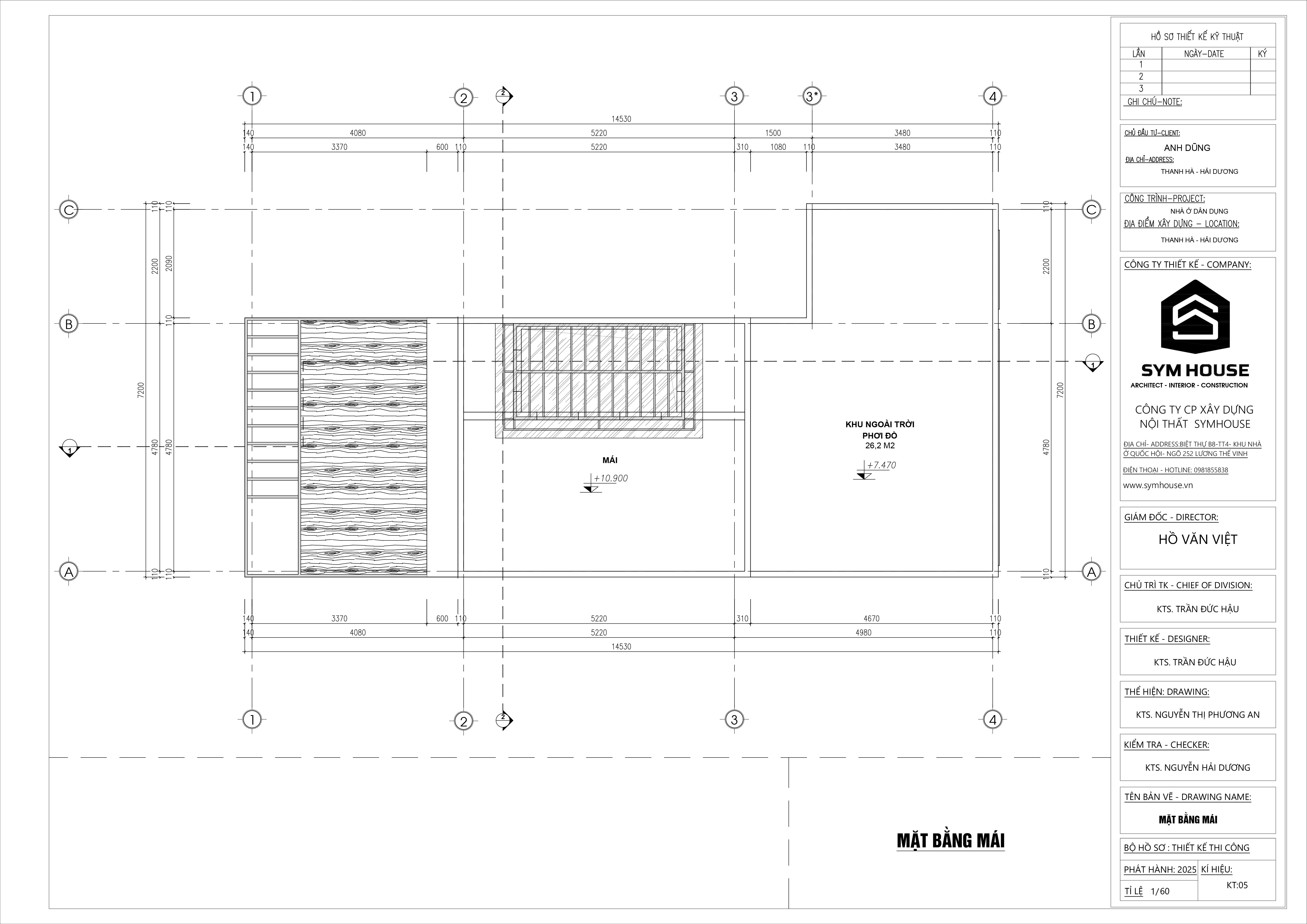
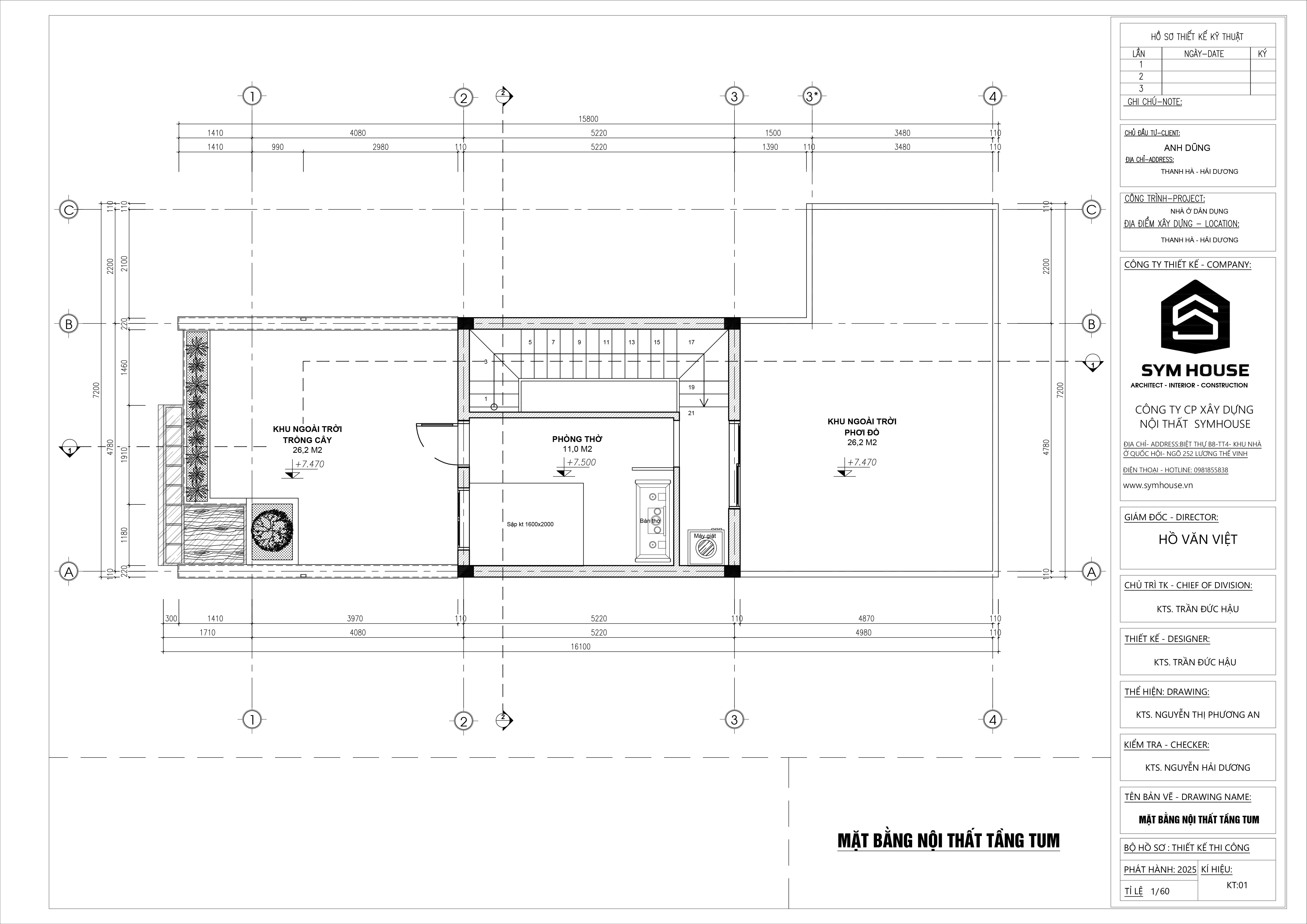
Mặt bằng tầng tum nhà 2 tầng 1 tum của gia đình anh Dũng tại Hải Dương
Mặt bằng tầng tum nhà 2 tầng 1 tum của gia đình anh Dũng tại Hải Dương

Bước lên tầng 2, không gian của ngôi nhà Dung’s House chuyển mình rõ nét sang khu vực nghỉ ngơi riêng tư, nơi mà mỗi thành viên trong gia đình đều có một “khoảng trời” riêng yên tĩnh và thoải mái sau một ngày dài. Tầng này được chúng tôi bố trí với hai phòng ngủ cùng một khu sinh hoạt chung ở trung tâm góp phần tạo nên một tổng thể hài hòa giữa sự riêng tư và tính kết nối cao. 

Với phòng ngủ đầu tiên kiến trúc sư SYM HOUSE bố trí đặt ở phía trước nhà, có ban công rộng thoáng, đây không chỉ giúp lấy sáng và đón gió tự nhiên mà còn là nơi lý tưởng để thư giãn tận hưởng khung cảnh trên cao. Phòng ngủ thứ hai nằm về phía sau nhà, thích hợp cho người thích sự yên tĩnh, kín đáo. Cách âm tốt, ánh sáng vừa đủ, kết hợp hệ thống thông gió giúp không khí luôn trong lành, dễ chịu. 

Nằm giữa hai phòng là khu sinh hoạt chung, đây là một không gian mở nhỏ nhưng vô cùng ấm cúng, nơi mà các thành viên trong gia đình có thể ngồi trò chuyện, đọc sách hoặc chơi đùa cùng trẻ nhỏ tại khu vực này. Đây cũng là điểm nhấn kết nối giữa các phòng, giúp tăng sự gắn bó và tương tác trong gia đình dù mỗi người đều có không gian riêng.

Không gian phòng thờ được đặt trên tầng tum theo hướng tốt phù hợp với mệnh của gia chủ. Bên ngoài phòng thờ được bố trí khoảng sân thượng và khoảng sân phơi đồ không chỉ giúp không gian thông thoáng mà còn là nơi gia chủ có thể trồng cây xanh, tạo điểm nhấn sinh động và gần gũi với thiên nhiên. 

Mặt bằng tầng 2 ngôi nhà 2 tầng 1 tum của gia đình anh Dũng tại Hải Dương
Mặt bằng tầng 2 ngôi nhà 2 tầng 1 tum tầng tum của gia đình anh Dũng tại Hải Dương
nha 2 tang 1 tum 2
Mặt bằng tầng 2 ngôi nhà 2 tầng 1 tum mái của gia đình anh Dũng tại Hải Dương

Sau thời gian đồng hành và trao đổi kỹ lưỡng cùng anh Dũng – chủ đầu tư căn nhà 2 tầng 1 tum tại Hải Dương, đội ngũ kiến trúc sư SYM HOUSE đã chính thức hoàn thiện bản thiết kế và nhận được “cái gật đầu” tin tưởng để bước vào giai đoạn thi công trọn gói.

Trải qua một quá trình làm việc cùng anh Dũng là một hành trình đáng nhớ, nơi mà chúng tôi không chỉ lắng nghe mà còn thấu hiểu sâu sắc nhu cầu, thói quen sinh hoạt và mong muốn về một không gian sống lý tưởng cho cả gia đình anh. Từ bản vẽ phác thảo đầu tiên đến phương án chốt cuối cùng, mọi chi tiết đều được cân nhắc kỹ lưỡng để đảm bảo tính thẩm mỹ, công năng và sự bền vững lâu dài.

Anh Dũng tại Hải Dương có chia sẻ với chúng tôi rằng: 

Tôi thực sự rất hài lòng với những gì mà SYM HOUSE đã mang đến cho gia đình chúng tôi về một không gian sống tiện nghi – sáng thoáng và xanh mát. Từ phong cách làm việc chuyên nghiệp, tinh thần cầu thị đến khả năng xử lý linh hoạt  đặc biệt là khi mảnh đất của gia đình tôi không theo bất kỳ khuôn mẫu nào. Các bạn kiến trúc sư đã lắng nghe, tư vấn tận tâm và đưa ra giải pháp thiết kế vừa sáng tạo, vừa thực tiễn. Mọi ý tưởng của gia đình tôi đều được tiếp nhận và thể hiện một cách tinh tế trong bản vẽ. 

Sự tin tưởng từ anh Dũng tại Hải Dương chính là nguồn động lực lớn để SYM HOUSE không ngừng cố gắng và hoàn thiện chính mình từng ngày. Mỗi công trình không chỉ là một sản phẩm kiến trúc đơn thuần, mà còn là minh chứng cho sự đồng hành, thấu hiểu và trân trọng từng giấc mơ “an cư”  của từng khách hàng lựa chọn chúng tôi.

Chần chừ gì nữa? Nếu bạn đang ấp ủ kế hoạch xây dựng tổ ấm cho gia đình muốn sử dụng dịch vụ thiết kế – thi công nhà trọn gói,  hãy để SYM HOUSE là người bạn đồng hành, mang đến những giải pháp thiết kế tinh tế, thi công chỉn chu và không gian sống xứng tầm với những giá trị bạn đang hướng đến. Mọi thông tin xin liên hệ qua số Hotline:  0986.685.538 , chúng tôi rất vinh hạnh được phục vụ quý khách hàng. 

>>>Xem thêm: 

Đánh giá

Chưa có đánh giá nào.

Hãy là người đầu tiên nhận xét “Chiêm ngưỡng thiết kế nhà 2 tầng 1 tum đậm chất hiện đại và tinh tế”